Unit E - 2103 Converse
3892 AC Square Feet
6360 Total Square Feet
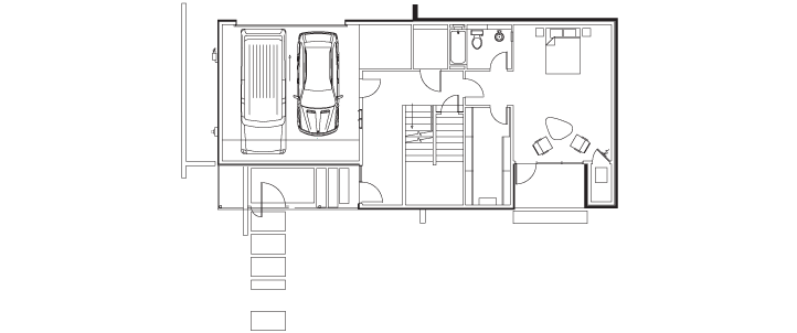
First Floor

Keys
|
Features
|
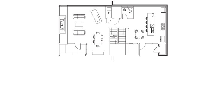
Second Floor

Keys
|
Features
|
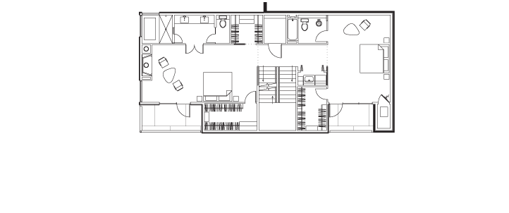
Third Floor

Keys
|
Features
|
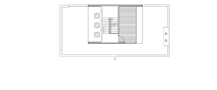
Roof Terrace

Keys
|
Features
|