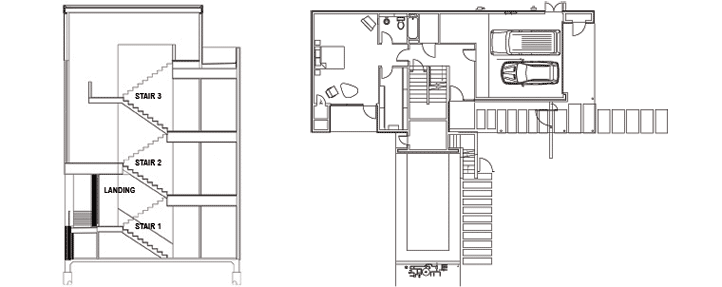
Unit B - 2107 Converse
4104 AC Square Feet
6961 Total Square Feet
First Floor

Keys
|
Features
|
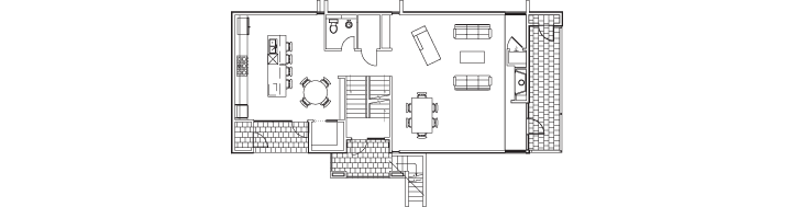
Second Floor

Keys
|
Features
|
Third Floor

Keys
|
Features
|
Roof Terrace

Keys
|
Features
|